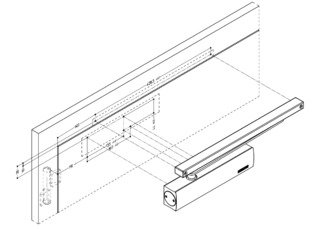
TS 5000 L ECline * Amortizor de ușă aplicat cu șină de ghidare pe partea balamalelor pentru uși cu un canat, fără restricții, cu lățime a canatului de până la 1250 mm și element de sprijin la deschidere
- Forță de închidere reglabilă fără trepte (cu selectare liberă) la EN 3-5
- Fără restricții conform DIN 18040, până la EN 5 (lățime a canatului de 1250 mm)
- Se poate utiliza pentru ușile cu opritor pe partea dreaptă și stângă, fără inversare
- Element de sprijin la deschidere pentru deschidere ușoară și manevrare confortabilă
- Element de sprijin la deschidere, decuplabil în cazul ușilor cu solicitare la vânt sau diferențe de presiune
- Forță de capăt hidraulică, care accelerează ușa cu puțin timp înaintea poziției închis
- Viteza de închidere se poate adapta individual
- Amortizarea integrată a deschiderii frânează ușile împinse puternic
- Afișaj optic al forței de închidere, pentru controlul ușor al setării
- Toate funcțiile se pot regla din față
Zone de aplicare
- Uși rezistente la foc și de protecție antifum
- Uși oscilante dreapta și stânga
- Uși oscilante cu o lățime a canatului de până la 1250 mm
- Montaj pe foaia de ușă pe partea opusă balamalelor și montaj pe toc pe partea balamalelor
- Fără restricții conform DIN 18040 până la EN 5
Situații de montare în clipuri video și obiecte de referință
Specificațiile produsului
| TS 5000 L ECline | |
| Forță de închidere conform EN 1154 | EN 3 - 5 |
| Fără bariere conform DIN 18040, până la o lățime (max.) a canatului, în mm | 1250 mm |
| Lățime canat (max.) | 1250 mm |
| Tip de montaj | Montaj pe toc, pe partea balamalelor, Montaj pe foaia de ușă pe partea opusă balamalelor |
| Unghi de deschidere (max.) | 180 ° |
| Compatibilitate uși rezistente la foc | Da |
| Forță de închidere reglabilă | Da, continuu |
| Viteză de închidere reglabilă | Da |
| Forță de capăt reglabilă | Da, prin intermediul supapei |
| Amortizarea deschiderii integrată | Da, reglabilă hidraulic |
| Element de sprijin la deschidere integrat | Da |
| Poziție de modificare a forței de închidere | Față |
| Afișaj optic al forței de închidere | Da |
| Blocare în poziție | Opțional |
Descărcări
Variante și accesorii
* Notă cu privire la produsele afișate
Produsele menționate mai sus pot varia în ceea ce privește forma, tipul, caracteristicile și funcțiile (designul, dimensiunile, disponibilitatea, aprobările, standardele etc.) în funcție de țară. Dacă aveți întrebări, vă rugăm să contactați persoana dvs. de contact GEZE sau să ne trimiteți un E-Mail .