Levolan

Levolan 120 complete set * Levolan sliding door fitting for leaf weights up to 120 kg

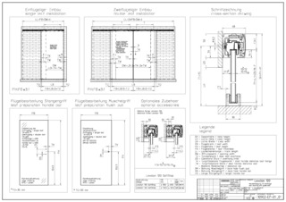
Levolan 120 roller sliding fitting Slim design with integrated fitting technology
  • Design sliding door fitting for glass and timber leaves
Contact us

Application Areas

  • For leaf weights up to 120 kg
  • For glass elements toughened safety of 10 and 12 mm as well as laminated safety glass of up to 12 mm (with additional LSG kit) and timber leaves up to a weight of 120 kg
  • For wall and ceiling installation
  • Suitable for interior use

Technical data

Levolan 120 complete set
Leaf material Glass, Plastic, Metal, Wood
Leaf weight (max.) 120 kg
Leaf weight (max.) with draw-in damper 120 kg
Number of leaves 1-leaf, 2-leaf
Test cycles 100000
Corrosion protection class 3
Pane thickness 10 - 12 mm
Type of installation Wall, Ceiling
Side panel Yes

Downloads

Variants & Accessories

Contact

GEZE Central +40-212-507-750 GEZE Service Central +40-316-201-257