RSZ 7 * Extendable smoke switch control unit for all GEZE hold-open devices
- Telescopic function for bridging overhangs of up to 30 mm
- Connection to 230 V power supply and 24 V DC supply of the hold-open device
- Voltage supply of the hold-open system is interrupted in the case of an alarm and the doors close
- Integrated smoke switch with automatic adaption of the alarm threshold
- Compensates for light contamination of the smoke chamber and thus increases the service life
- Visual display of the current control unit status
Application Areas
- Approved for all GEZE hold-open devices for the early detection of fire and smoke
- Difficult lintel situations, for example with too little space above the smoke chamber
- Installation above the active leaf on the vertical wall
- Installation possible with surface-mounted line-feed
Installation situations in reference objects and videos
Technical data
| RSZ 7 | |
| Supply voltage | 230 V |
| Frequency of supply voltage | 50/60 Hz |
| Output power | 6.3 W |
| Current consumption | 0.08 A |
| IP rating | IP20 |
| protection rating | II |
| Output voltage | 24 V DC |
| Connection of additional smoke switches | 2 |
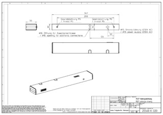
| Height | 30 mm |
| Depth | 55 mm |
| Ambient temperature | -5 °C - 50 °C |
Downloads
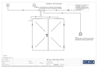
LABELLING OBLIGATION: © GEZE GmbH
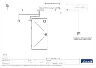
LABELLING OBLIGATION: © GEZE GmbH
LABELLING OBLIGATION: © GEZE GmbH
Variants & Accessories
* Notice about the products displayed
The products mentioned above may vary in form, type, characteristics and function (design, dimensions, availability, approvals, standards etc.) depending on the country. For questions please contact your GEZE contact person or send us an E-Mail .