TS 4000 R-IS * Sistem de amortizor aplicat cu braț pentru uși cu două canaturi cu reglarea succesiunii de închidere, blocare electrică în poziție și întrerupător în caz de fum
- Sistem alcătuit din două amortizoare de ușă TS 4000 R-IS cu sistem mecanic de declanșare
- Forță de închidere reglabilă fără trepte (cu selectare liberă) la EN1-6
- Tensiune de funcţionare 230 V c.a.
- Se poate utiliza pentru ușile cu opritor pe partea dreaptă și stângă, fără inversare
- Centrală de întrerupere în caz de fum integrată, al cărei semnal închide ușa automat în caz de incendiu
- Întrerupător în caz de fum cu afișajul gradului de murdărire și ghidare ulterioară a pragului de alarmă
- Senzor de fum suplimentar, cu posibilitate de conectare
- Blocare electrică în poziție pe ambele canaturi cu interval de blocare în poziție de 80°-175°
- Reglarea succesiunii la închidere menține canatul activ în poziție de așteptare până când canatul pasiv este închis
- Amortizarea integrată a deschiderii de la canatul pasiv frânează ușile împinse puternic
- Forță de capăt mecanică, care accelerează ușa cu puțin timp înaintea poziției închis
- Viteza de închidere se poate adapta individual
- Afișaj optic al forței de închidere, pentru controlul ușor al setării
- Toate funcțiile se pot regla din față (cu excepţia forței de capăt)
Zone de aplicare
- Uși rezistente la foc și de protecție antifum
- Uși oscilante cu două canaturi
- Uși oscilante cu o lățime a laturii de până la 2800 mm și o lățime a canatului de până la 1400 mm
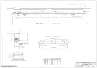
- Montaj pe toc partea opusă balamalelor
- Instalații de blocare în poziție integrată, cu blocare în poziție
Specificațiile produsului
| TS 4000 R-IS | |
| Forță de închidere conform EN 1154 | EN 1 - 6 |
| Fără bariere conform DIN 18040, până la o lățime (max.) a canatului, în mm | 1400 mm |
| Lățime canat (max.) | 1400 mm |
| Tip de montaj | Montaj pe toc partea opusă balamalelor |
| Unghi de deschidere (max.) | 180 ° |
| Tensiunea de intrare | 230 V CA |
| Compatibilitate uși rezistente la foc | Da |
| Forță de închidere reglabilă | Da, continuu |
| Viteză de închidere reglabilă | Da |
| Forță de capăt reglabilă | Da, prin intermediul brațului |
| Poziție de modificare a forței de închidere | Față |
| Afișaj optic al forței de închidere | Da |
| Blocare în poziție la canatul activ / canatul pasiv | Da / Da |
| Interval de blocare în poziție | 80 ° - 175 ° |
| Reglarea succesiunii de închidere integrată | Da |
Descărcări
LABELLING OBLIGATION: © GEZE GmbH
Variante și accesorii
* Notă cu privire la produsele afișate
Produsele menționate mai sus pot varia în ceea ce privește forma, tipul, caracteristicile și funcțiile (designul, dimensiunile, disponibilitatea, aprobările, standardele etc.) în funcție de țară. Dacă aveți întrebări, vă rugăm să contactați persoana dvs. de contact GEZE sau să ne trimiteți un E-Mail .