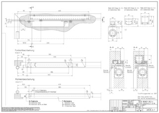
Amortizor Boxer 2-4 * Corp de bază pentru amortizor integrat EN 2-4 cu amortizarea deschiderii
- Toate funcțiile se pot regla în stare montată
- Forță de închidere reglabilă fără trepte de la partea superioară
- Viteză de închidere reglabilă de sus prin intermediul valvelor
- Forță de capăt reglabilă de sus prin intermediul valvei
- Amortizarea deschiderii reglabilă de sus prin intermediul valvei
- Amortizor utilizabil pentru uși cu opritor pe partea dreaptă și pe partea stângă
- Prelungirile axului disponibile până la 8 mm
- Efort redus la montaj, datorită numărului redus de piese și reglării rapide
Zone de aplicare
- Uși rezistente la foc și de protecție antifum, este necesară dovada compatibilităţii cu ușa
- Uși oscilante dreapta și stânga
- Uși cu opritor cu lățimea canatului de până la 1100 mm, pentru uși cu greutatea de până la 130 kg
- Pentru grosimi ale foii de ușă începând de la 40 mm
- Montaj integrat
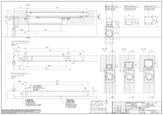
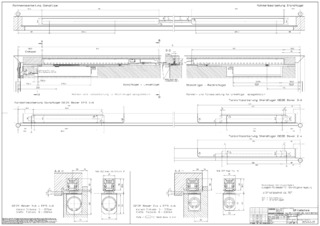
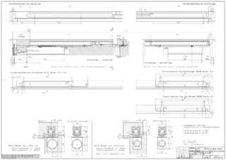
Specificațiile produsului
| Amortizor Boxer 2-4 | |
| Forță de închidere conform EN 1154 | EN 2 - 4 |
| Lățime canat (max.) | 1100 mm |
| Greutate canat (max.) | 130 kg |
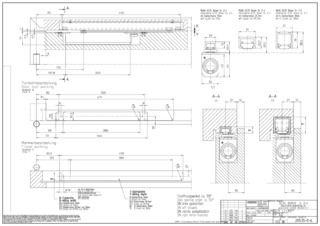
| Unghi de deschidere (max.) | 120 ° |
| Variantă de execuție identică DIN-L și DIN-R | Da |
| Conformitate cu normele | EN 1154:1996/A1:2002/AC:2006 |
| Compatibilitate uși rezistente la foc | Da |
| Lungime | 286 mm |
| Lățime | 32 mm |
| Înălțime | 45 mm |
| Forță de închidere reglabilă | Da, continuu |
| Viteză de închidere reglabilă | Da |
| Forță de capăt reglabilă | Da, prin intermediul supapei |
| Amortizarea deschiderii integrată | Da, reglabilă hidraulic |
| Poziție de modificare a forței de închidere | Sus |
| Valvă de siguranță împotriva suprasolicitării | Da |
Descărcări
LABELLING OBLIGATION: © GEZE GmbH
Variante și accesorii
* Notă cu privire la produsele afișate
Produsele menționate mai sus pot varia în ceea ce privește forma, tipul, caracteristicile și funcțiile (designul, dimensiunile, disponibilitatea, aprobările, standardele etc.) în funcție de țară. Dacă aveți întrebări, vă rugăm să contactați persoana dvs. de contact GEZE sau să ne trimiteți un E-Mail .