ECdrive H * Sistem automat de ușă glisantă liniară pentru zonele cu cerințe de igienă ridicate
- Alcătuit din kitul de acționare și profile din aluminiu
- Oferă numeroase posibilități pentru o colaborare specifică proiectului cu procesatorii
- Șina de rulare specială reduce depunerile impurităților și facilitează curățarea igienică
- Lățimi de deschidere optimizate pentru utilizare spitale (deschidere pentru asistente, deschidere de curățare, deschidere suficient de mare pentru trecerea paturilor de spital).
- Capacitate de legare în rețea și capacitate de integrare prin intermediul standardului deschis (BACnet) în automatizarea clădirii
- Detectare și documentare automată a erorilor
- Intrări și ieșiri cu posibilitate de reglare a parametrilor pentru diferite funcții
- Acumulator integrat pentru deschidere și închidere de urgență la căderea de rețea
- Căruciorul cu role cu autocurățare reduce efortul de întreținere
- Diferite blocări mecanice și electrice sunt disponibile opțional
Zone de aplicare
- Sisteme de ușă glisantă cu un canat și cu două canaturi.
- Uși interioare cu cerințe de igienă ridicate, cum ar fi de ex. blocuri operatoare, laboratoare, spații pure
- Lățimi de deschidere posibile între 700 și 2200 mm
- Greutăți ale canatului ușii de până la 120 kg per canat
- Sistemul de profil adecvat este sistemul de profil cu cadru subțire cu sticlă izolatoare
Situații de montare în clipuri video și obiecte de referință
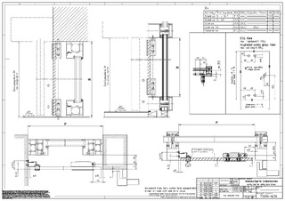
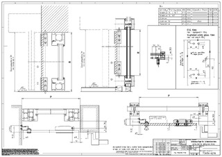
Specificațiile produsului
| ECdrive H | |
| Pentru sistemele de uși cu 1 canat | Da |
| Pentru sistemele de uși cu 2 canaturi | Da |
| ISO-Glas cu cadru subțire | Da |
| Înălțime | 200 mm |
| Adâncime | 105 mm |
| Greutate a canatului (max.) 1 canat | 120 kg |
| Greutate a canatului (max.) 2 canaturi | 120 kg |
| Lățime de deschidere 1 canat | 700 mm - 2200 mm |
| Lățime de deschidere 2 canaturi | 900 mm - 2200 mm |
| Temperatură de funcționare | -15 - 50 °C |
| Tip de protecție | IP20 |
| Separarea de la rețea | Întrerupător principal în acționare |
| Conformitate cu normele | DIN 18650, DIN EN ISO 13849: Performance Level D, EN 16005 |
Descărcări
LABELLING OBLIGATION: © GEZE GmbH
LABELLING OBLIGATION: © Łukasz Janicki / GEZE GmbH
LABELLING OBLIGATION: © Łukasz Janicki / GEZE GmbH
LABELLING OBLIGATION: © Łukasz Janicki / GEZE GmbH
LABELLING OBLIGATION: © Łukasz Janicki / GEZE GmbH
LABELLING OBLIGATION: © Łukasz Janicki / GEZE GmbH
LABELLING OBLIGATION: © Łukasz Janicki / GEZE GmbH
LABELLING OBLIGATION: © Łukasz Janicki / GEZE GmbH
LABELLING OBLIGATION: © Łukasz Janicki / GEZE GmbH
LABELLING OBLIGATION: © Łukasz Janicki / GEZE GmbH
LABELLING OBLIGATION: © Łukasz Janicki / GEZE GmbH
Variante și accesorii
* Notă cu privire la produsele afișate
Produsele menționate mai sus pot varia în ceea ce privește forma, tipul, caracteristicile și funcțiile (designul, dimensiunile, disponibilitatea, aprobările, standardele etc.) în funcție de țară. Dacă aveți întrebări, vă rugăm să contactați persoana dvs. de contact GEZE sau să ne trimiteți un E-Mail .